杭世珺:污泥水泥窑协同处置现状与展望

2021-01-18 09:52发布

危险废弃物处理现状

目前,由于我国对危险废弃物的处置缺乏安全、有效的处置手段,各地无奈只好消极封存,至使工业危險废弃物污染引发的亊故,已成为环境污染亊故的突出问题。一系列工业危废污染亊件,直接危害着人民身体健康和生存环境。危险废弃物的安全、高效处置,随着国内外对环保的高度重视,也愈加成为我国迫切须解决的重大课题,同时也成为全球环保领域的一大难题。


危险废弃物在我国大量积压的主要原因是缺乏安全有效的处理处置手段。目前,处理危险废弃物最普遍的方法是采用燃油焚烧技术,所釆用的回转炉或热解炉型,总体技术水平低,管理运行成本高,后续焚烧尾气(可大量产生高致癌物--二噁英)处理系统可靠性缺乏保障。


这种处理方法的弊端是:


① 普通焚烧炉的温度最高在 800℃左右,危险废弃物在炉内不能充分燃烧分解,尾气排放往往达不到国家标准,造成恶臭、烟尘、二噁英等有毒有害物质大量生成,给周边环境带来严重的二次污染;联合国世卫组织( W H O )的调查报告指出,垃圾焚烧是产生二噁英等极为有害物质的重要来源,到目前为止尚未找到解决二噁英的有效办法。


② 采用普通焚烧技术,投入费用极其昂贵,管理运行成本高;


③ 传统燃油炉不能很有效的处置高危工业废弃物,油气能源消耗很大,不符合国家长远的能源战略政策。


1.2 运用等离子体技术处置危险废弃物 是最优选择


“等离子热解、裂解高危废弃物处理装置”运用了现代科学的相关高新技术--电弧等离子体技术--处置危险废弃物。我们科研团队早在 2002 年 5 月就巳硏制出的第一代产品--“等离子医疗危废处理装置” 並推向市场,获得市场良好反响。


中科院基础局于 2004 年 11 月 29 日主持召开的创新方向项目“等离子体热解、裂觧危险废弃物研究” 可行性论证会上,来自清华大学、中科院生态环境中心、国家环保产业协会、核二院等国内相关领域的专家小组,一致认为,采用等离子技术处理高危废物,具有无害化彻底、减容量大、二次污染小的特点,采用还原∕无氧等离子体子热解、裂解方案,可以避免氧化法的一些缺点,其学术理论先进,具有新颖的创新性,创新目标符合国家环保和可持续性发展战略,具有极佳的环保效益和经济、社会效益。主要技术指标先进,预期成果不仅有科技理论创新性,而且具有巨大的产业化前景,有望产生我国自主知识产权的高危废物处理系统,在国际髙科技环保项目中,将取得明显竞争优势。这一装置可使危险废弃物在高温下,有害物质的分子、原子结构发生变化,並迅速热解、裂解,断绝二噁英产生的机会,迅速使其減容並并无害化,彻底解决了处理危险废弃物可能造成二次污染的问题。专家认为,通过本项目的实施,形成可产业化应用的危废处理技术,为我国环保产业做出实际贡献,寄予厚望。
经过近年来我们科研团队的进一步深化、优化硏究,使这一装置更先进、更实用、更完善、更具有市场竞争力。


这项技术产品具有快速、高效、安全、洁净、余热再利用和节约资源的特征,保证了危险废弃物最大限度的资源化、减量化和无害化。


1.3电弧等离子体在环保领域具有十分广泛的可应用范围:


① 核电、核军工领域的放射性废料的安全处置;


② 工业高危废弃物、医疗垃圾、电子垃圾、生活垃圾的处置;


③ 高熔点材料,如各种矿石冶炼、耐火保温材料熔制、废旧金属回收;


④ 纳米材料制造;


⑤ 殡葬业;


⑥ 热电厂等工业炉无油点火技术;


1.4  电弧等离子体工业高危废弃物处理装置有以下特征:


① 启动快,升温迅速,温度高,分解速度快。装置启动 0.5 秒内炉膛焰芯温度可达 2-3


万摄氏度,焰周温度可达 3000 摄氏度。在高温下危险废物被高效热解、裂解,所有的传染病


毒及其他有害有毒物质将全部分解,达到彻底无毒无害化。


② 占地面积小,结构可小型化,以等离子体处置为主的尾气处置可以大大简化。例:一个日处理 5~6 吨的中型等离子体处理装置,占地面积仅 100 多㎡。


③ 电热转换效率高 90%。


④ 洁净、安全、无污染。等离子处理系统不用煤、油燃气只用电、水和空气。


⑤ 简化后的尾气装置排出的烟气,完全符合国家标准,并且可以做到无黑烟排放。


⑥ 对二噁英控制方面有非常明显的优越性,烟气、二噁英排放完全符合国家标准。


⑦ 操作简单,启动、停机快,可全自动控制。特别适合高危废弃物处置所要求的快速启动、频繁启动的控制与操作。


⑧ 采用等离子体方式进行多种类型危险废物处置,效率高。


⑨ 适用范围广,可以处置多种类型的危险废弃物。


图片


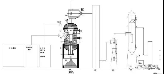
近年来,电弧等离子技术在现代工业中得到广泛应用,尤其在工业、医疗、化工、核工业等危险废物处罝上日益显现威力,为环境保护发挥着越来越重要的作用。我们曾运用这一技术,成功研制出电弧等离子体医疗危废处理装置。目前,正在制造工业固废、工业液(汽)危废物处理装置,已着手研究电弧等离子体核危废处理装置以及在殡葬业、晶体工业高炉无油点火等不同领域的应用,设备可固定安装在厂房里面,也可安装在户外,方便灵活,以下是小型车载医疗垃圾的处置设备介绍:

离子体处理医疗危险废物等

主要性能与配置:


等离子体危险废弃物(医疗垃圾)处理装置主要包括:等离子体电源、等离子体发生器、废弃物预处理和送料系统、等离子体裂解炉体(一燃室)、灰渣收集系统、二燃室、尾气处理系统(包括冷凝器、洗涤塔、布袋除尘器、活性炭吸附装置、引风机和烟囱)。


在等离子体裂解炉体(一燃室)上安装1只40 kW的等离子体发生器,维持炉体内的温度在1200 °C以上,破坏危险废弃物中有机物的分子键实现将大分子裂解成小分子,形成可燃气,将废物(医疗垃圾)中的有机物和水溶液汽化,少量的无机物沉底熔融成玻璃体。废物预处理和送料系统根据被处理对象的特性进行预处理,并按照设定的工艺参数向炉体内投放送入等离子体内。炉体内壁采用耐火材料浇筑(或堆砌)而成。灰渣回收系统实现定期从炉体回收无机物、对熔融矿渣进行冷却并回收玻璃体。一燃室的可燃烟气进入二燃室,二燃室安装有备用发生器1只20 kW的等离子体发生器维持温度在1100 °C以上,且气流螺旋推进,使处理更加充分。二燃室的烟气进入冷凝器,使温度迅速降低到400 °C以下,绕过二噁英产生的温度从而使尾气中二噁英含量大大减少。洗涤塔用于去除烟气中的酸碱物质。布袋除尘器用于吸附烟气中的飞灰。活性炭吸附装置用于吸附烟气中残余的二噁英。最后,达到排放标准的尾气通过引风机从烟囱排出。其各项技术指标如下表所示:


技术指标:


等离子体危险废弃物处理装置技术指标:


电源和发生器功率60kW ×1台20kW ×1台

处理量1吨/天(20小时)
一燃室裂解温度>1200 °C
二燃室温度>1100°C
尾气排放>500 m3/h
二噁英含量<0.1 ng/m3(欧盟标准)
残渣<3%
热灼减率<1 %
占地面积30m2以内
炉体高度:1.5米(立试炉或卧试炉)
控制方式:系统集中控制(PLC)


系统设备特点:
1, 所有设备均为小型一体化设备;
2,设备总计重量不超过5T;
3,设立废弃物独立的储备设备,全封闭;
4,安装车载发电机100Kw左右;
5,处置功率小于60Kw,处置量大约20-50kg/小时;
6,安装完善的尾气处理系统(小型);
7,所有设备可安装在10米长的卡车上,方便灵活,具有成本优势。


设备示意图如下:

图片


来源: 废物鉴定利用


危废技术  2019-05-22

赞赏支持